欢迎光临佛山市诺宇嘉铝业有限公司官方网站!
收藏本站
在线留言
联系我们
0757-85576056
送设计
保质量
高品质
网站首页
关于我们
最新型材
产品中心
成功案例
招商加盟
线下体验店
新闻资讯
联系我们
产品中心
平开窗系列
推拉窗系列
阳光房系列
重型门系列
推拉门系列
断桥窗纱一体系列
折叠门
方管系列
咨询热线
0757-85576056
断桥窗纱一体系列
您的位置:
主页
>
产品中心
>
断桥窗纱一体系列
>
prev
next
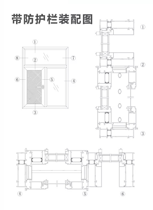
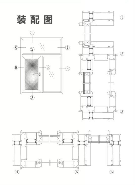
135断桥窗纱一体系列
咨询热线:
0757-85576056
产品详情
咨询:135断桥窗纱一体系列
联 系 人
手机号码
电子邮件
友情链接
诺宇嘉铝业
佛山网站建设
广州大巴出租
广州大巴出租